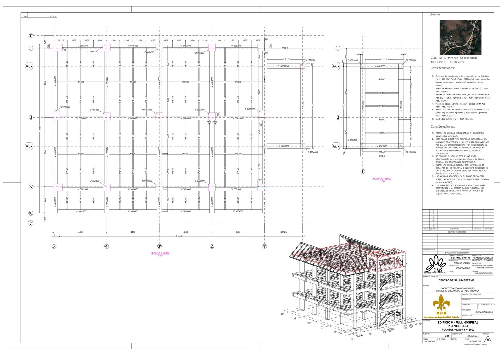
Hospitalización Edificio 6
Diseño hospitalario orientado a capacidad operativa, comodidad del paciente y eficiencia en servicio.
Sobre este proyecto
La propuesta del Edificio 6 responde a la necesidad de contar con espacios de hospitalización preparados para una operación continua y bien articulada. Se plantea una solución sobria y funcional, capaz de integrar atención, soporte y circulación en una infraestructura coherente con un complejo de salud contemporáneo.












Nuestros Servicios
Soluciones estructurales integrales para proyectos seguros

Modelado y Cálculo Estructural
Análisis estructural avanzado con modelado 3D y normativa vigente

Diseño y Cálculo de Conexiones
Diseño de conexiones apernadas y soldadas con verificación FEM

Diseño de Fundaciones
Cálculo de fundaciones según estudio de suelos y cargas reales

Planimetria y altimetria
Planos estructurales detallados listos para obra y validación
Experiencia, precisión y respaldo técnico
Ingeniería basada en normativa vigente
Diseñamos bajo estándares internacionales, garantizando seguridad estructural y cumplimiento técnico en cada proyecto.
Modelado y análisis estructural avanzado
Utilizamos ETABS y herramientas especializadas para evaluar cargas, sismo y viento con precisión y respaldo técnico.
Optimización técnica y Económica
Reducimos desperdicio de material y mejoramos eficiencia estructural sin comprometer seguridad ni desempeño.
Entregables claros y listos para construir
Planos, memorias, modelos BIM y cómputos organizados para facilitar obra, licenciamiento y coordinación interdisciplinaria.
Testimonios
Impulsa tu proyecto con nosotros
Desarrollamos soluciones estructurales seguras, optimizadas y bajo normativa vigente. Desde el modelado y análisis hasta planos, fundaciones y entregables técnicos completos, te acompañamos en cada etapa para garantizar precisión, eficiencia y confianza en obra.
